Projet /
Surface /
Montant des travaux /
Maîtrise d'ouvrage /
Mission /
Programme /
Réalisation /
Lieu /

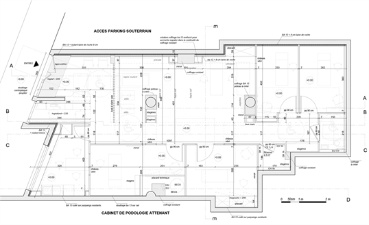
- Création d'un cabinet de kinésithérapie dans un local brut en pied d'immeuble
- 120 m²
- 100 000 HT
- Privée
- Complète
- Accueil, salles de travail, salle de repos, salle d'attente, sanitaires
- Chantier livré
- Marseille (13)