Projet /
Surface /
Montant des travaux /
Maîtrise d'ouvrage /
Mission /
Programme /
Réalisation /
Lieu /

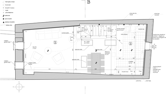
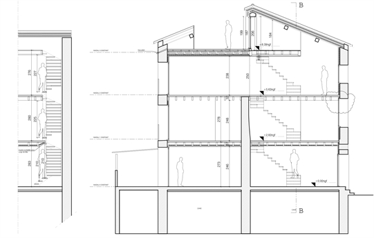
- Restructuration / rénovation énergétique ANAH d'une maison
- 80 m²
- NC
- Privée
- Complète
- T3 en triplex + terrasse en dernier niveau
- Chantier livré
- Lodève (34)