Projets
Infos
Contact
Projet suivant >>>>>
<<< Projet précédent
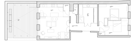
Projet /
Surface /
Montant des travaux /
Maîtrise d'ouvrage /
Mission /
Programme /
Réalisation /
Lieu /
- Rénovation d'un appartement
- 75 m²
- 22 000 HT
- Privée
- Complète
- T3, terrasse extérieure
- Chantier livré
- Marseille (13)
<<<Accueil
Projet suivant >>>>>
<<< Projet précédent
RBB Architectes - 56 rue de la Dysse 34150 Montpeyroux