Projet /
Surface /
Montant des travaux /
Maîtrise d'ouvrage /
Mission /
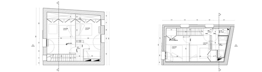
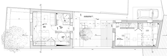
Programme /
Réalisation /
Lieu /

- Bailly
- 121 m²
- 285 000 HT
- SNL 78
- Complète, en collaboration avec Hélène Reinhardt architecte 
- Restructuration complète d'une maison pour créer 3 logements sociaux
- Projet arrêté en phase DCE
- Bailly (78)