Projet /
Surface /
Montant des travaux /
Maîtrise d'ouvrage /
Mission /
Programme /
Réalisation /
Lieu /

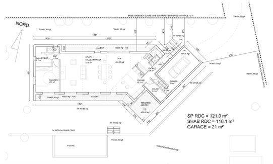
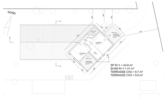
- Maison individuelle
- 165 m²
- NC
- Privée
- Esquisse / PC 
- Construction d'une maison individuelle, bassins de phyto-épuration
- Mission achevée
- Montmeyan (83)